Casa indipendente in vendita

Mirabello Monferrato, Vicolo S. Orsola
€ 60.000
6 locali 6 locali
270 Mq 270 Mq

Casa indipendente in vendita

Mirabello Monferrato, Vicolo S. Orsola

Descrizione annuncio

A Mirabello Monferrato, nel centro del paese, proponiamo una soluzione indipendente su quattro lati con giardino di proprietà esclusiva.

L’immobile, articolato su più livelli, si presenta completamente da ristrutturare.

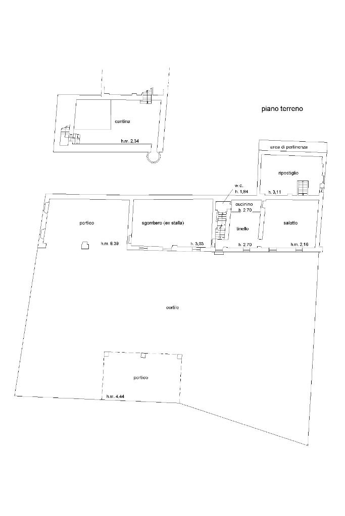
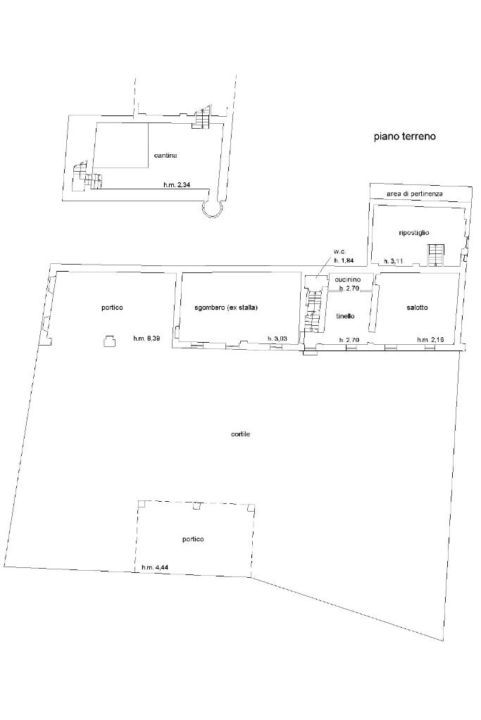
Al piano terra si sviluppa la zona giorno, composta da una sala, un cucinino, un tinello, un bagno e un ampio ripostiglio; tramite la scala interna si accede al primo piano, dove si trova la zona notte con quattro camere da letto.

Proseguendo, sempre mediante scala interna, si raggiunge anche il secondo piano, costituito da due locali nel sottotetto.

A completare la proprietà sono presenti inoltre due locali di sgombero, due portici e una cantina al piano interrato.

Mostra tutto

Nelle vicinanze

Trasporto pubblico Trasporto pubblico
Trasporto pubblico
270 m
Scuole Scuole
Scuola primaria "Tenente Vincenzo Acuto"
230 m
Scuole
2,9 Km
Farmacia Farmacia
Farmacia
260 m
Supermercati Supermercati
Mini Market
280 m
Negozi Negozi
Negozi
160 m
Ristoranti Ristoranti
Ristorante Del Moro
3,0 Km
Mostra tutto

Caratteristiche

Rif.:
61083160
Piano:
Su più livelli di 2
Totale piani:
2
Camere da letto:
4
Arredamento:
Assente
Condizionamento:
Assente
Mostra tutto
Prezzo Prezzo
€ 60.000
Rata mutuo Rata mutuo
€ 285 / mese
Spese annue Spese annue
€ 0
Proponi il tuo prezzoProponi il tuo prezzo
Immobile valutato con T·Valuta

Classe Energetica

F
F
F
F
F
F
F
F
F
EP globale non rinnovabile:
391.42 kW h/m² anno
EP globale rinnovabile:
0.00 kW h/m² anno
EP invernale del fabbricato:
EP estiva del fabbricato:
Anno di costruzione:
1920
Riscaldamento:
Autonomo
Tipo impianto:
Ad aria
Tipo alimentazione:
Metano

Ti interessa visionare l'immobile?

Fissa un appuntamento  Fissa un appuntamento

Richiedi informazioni

Clicca su Leggi per aprire l'informativa
* Questi campi sono obbligatori

Calcola il tuo mutuo

Semplice e senza impegno
Anticipo

( % )
Mutuo

( % )

pochi semplici passi

inserisci i tuoi dati
Questionario completato
Grazie per aver richiesto un appuntamento senza impegno con un nostro Consulente del Credito e Assicurativo.

Hai inserito correttamente tutti i dati necessari e a breve riceverai una e-mail con un link da convalidare per inviare i tuoi dati.
Affiliato
Immobiliare Valenza Srl
Viale Dante Alighieri, 25 15048 Valenza (AL)

Il nostro staff


  • Christian Orsogna
    Affiliato

  • Elisa Mariscotti
    Coordinatrice
Viale Dante Alighieri, 25 15048 Valenza (AL)
Zona: Valenza e Dintorni
Mostra su mappa
Affiliato
Immobiliare Valenza Srl
Viale Dante Alighieri, 25 15048 Valenza (AL)

2026 Tecnocasa Franchising S.p.A. - P. IVA 08365160152 - Via Monte Bianco 60/A 20089 Rozzano (MI). Ogni agenzia ha un proprio titolare ed è autonoma. Privacy policy | Policy utilizzo | Cookie policy