Casa semindipendente in vendita

Pecetto Di Valenza, Via Ghilini
€ 19.000
Prezzo aggiornato
6 locali 6 locali
162 Mq 162 Mq
1 bagno 1 bagno

Casa semindipendente in vendita

Pecetto Di Valenza, Via Ghilini

Descrizione annuncio

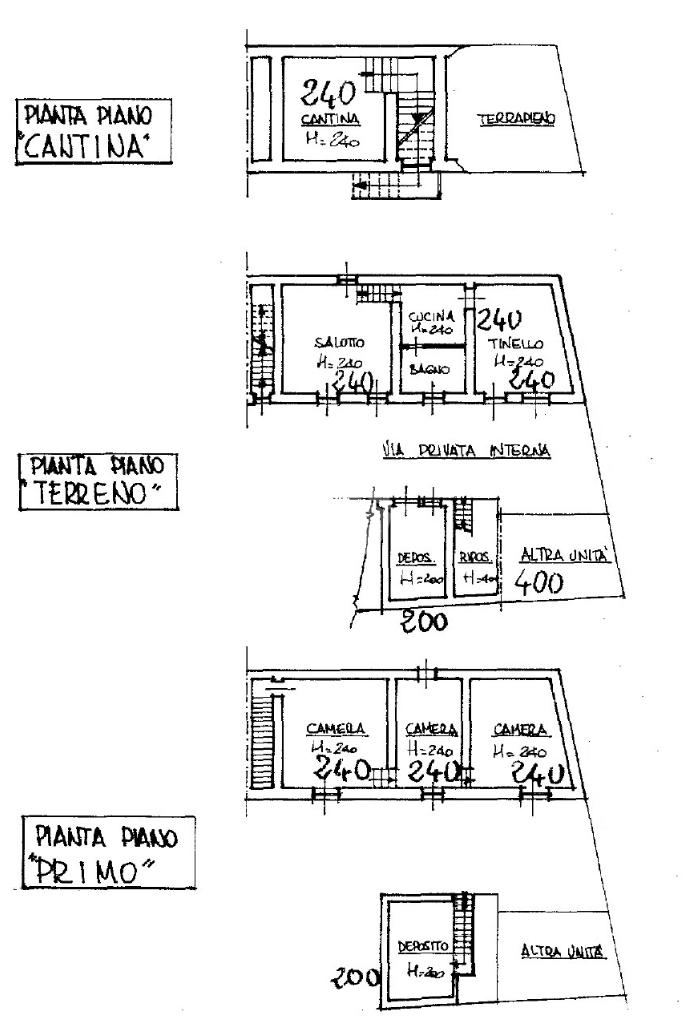
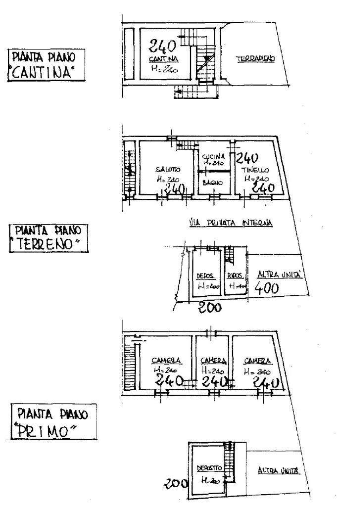
A Pecetto di Valenza a soli cinque minuti da Valenza, proponiamo in vendita casa semi indipendente disposta su più livelli.

Al piano terra troviamo la zona giorno composta da un cucinotto con tinello, un'ampio soggiorno e un bagno; tramite scala esterna accediamo al primo piano dove troviamo la zona notte composta da tre camere da letto.

A completare la proprietà troviamo una cantina e un box auto singolo.

La soluzione si presenta da ristrutturare.

Mostra tutto

Nelle vicinanze

Scuole Scuole
Scuole
2,7 Km
Scuola Media G.Pascoli
2,9 Km
Supermercati Supermercati
eurospin
2,5 Km
Supermercati
2,7 Km
Ristoranti Ristoranti
Locanda dei Paoli
150 m
Mostra tutto

Caratteristiche

Rif.:
61115223
Piano:
1 di 2 (Piano su più livelli)
Box:
1
Camere da letto:
3
Arredamento:
Assente
Condizionamento:
Assente
Mostra tutto
Prezzo Prezzo
€ 19.000
Rata mutuo Rata mutuo
€ 88 / mese
Spese annue Spese annue
€ 0
Proponi il tuo prezzoProponi il tuo prezzo
Immobile valutato con T·Valuta

Classe Energetica

G
G
G
G
G
G
G
G
G
EP globale non rinnovabile:
290.21 kW h/m² anno
EP globale rinnovabile:
0.00 kW h/m² anno
EP invernale del fabbricato:
EP estiva del fabbricato:
Anno di costruzione:
1900
Riscaldamento:
Assente

Prezzo ridotto di €1 (24%%)

Ti interessa visionare l'immobile?

Fissa un appuntamento  Fissa un appuntamento

Richiedi informazioni

Clicca su Leggi per aprire l'informativa
* Questi campi sono obbligatori

Calcola il tuo mutuo

Semplice e senza impegno
Anticipo

( % )
Mutuo

( % )

pochi semplici passi

inserisci i tuoi dati
Questionario completato
Grazie per aver richiesto un appuntamento senza impegno con un nostro Consulente del Credito e Assicurativo.

Hai inserito correttamente tutti i dati necessari e a breve riceverai una e-mail con un link da convalidare per inviare i tuoi dati.
Affiliato
Immobiliare Valenza Srl
Viale Dante Alighieri, 25 15048 Valenza (AL)

Il nostro staff


  • Christian Orsogna
    Affiliato

  • Elisa Mariscotti
    Coordinatrice
Viale Dante Alighieri, 25 15048 Valenza (AL)
Zona: Valenza e Dintorni
Mostra su mappa
Affiliato
Immobiliare Valenza Srl
Viale Dante Alighieri, 25 15048 Valenza (AL)

2026 Tecnocasa Franchising S.p.A. - P. IVA 08365160152 - Via Monte Bianco 60/A 20089 Rozzano (MI). Ogni agenzia ha un proprio titolare ed è autonoma. Privacy policy | Policy utilizzo | Cookie policy