Casa semindipendente in vendita

Pietra Marazzi, Piazza Umberto I
€ 67.000
12 locali 12 locali
353 Mq 353 Mq
2 bagni 2 bagni

Casa semindipendente in vendita

Pietra Marazzi, Piazza Umberto I

Descrizione annuncio

A Pietra Marazzi, a due passi dalla piazza principale, proponiamo in vendita casa indipendente su tre lati con giardino e cortile.

La soluzione, disposta su più livelli, prevede due alloggi.

Il primo appartamento è posto al piano terra con ingresso su ampio disimpegno, un salone doppio caratterizzato da camino, una cucina abitabile, due camere da letto matrimoniali e ampio bagno.

Il secondo appartamento, posto invece al primo piano, è composto da un ampio ingresso, un salone doppio con camino e soffitto affrescato, cucina abitabile, due camere da letto matrimoniali, ampio bagno e ampio ripostiglio.

Gli appartamenti sono collegati grazie alla presenza di una scala interna.

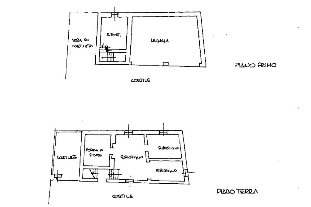
A completare la proprietà, oltre al giardino, troviamo anche un ampio porticato e un rustico disposto su due livelli; al piano terra tre locali uso ripostiglio mentre al primo piano troviamo la legnaia e un ulteriore ripostiglio.

Mostra tutto

Nelle vicinanze

Trasporto pubblico Trasporto pubblico
Trasporto pubblico
2,5 Km
Scuole Scuole
Scuola Primaria Statale Vittorio Alfieri
2,5 Km
Farmacia Farmacia
Farmacia Tana
2,5 Km
Bar Bar
Caffetteria della Piazza
2,5 Km
Panetteria
2,5 Km
Ristoranti Ristoranti
Castello di Pavone
1,2 Km
Ristoranti
2,8 Km
Mostra tutto

Caratteristiche

Rif.:
61175463
Piano:
2 di 2 (Piano su più livelli)
Box:
1
Balconi:
1
Camere da letto:
5
Arredamento:
Assente
Mostra tutto
Prezzo Prezzo
€ 67.000
Rata mutuo Rata mutuo
€ 318 / mese
Spese annue Spese annue
€ 0
Proponi il tuo prezzoProponi il tuo prezzo
Immobile valutato con T·Valuta

Classe Energetica

F
F
F
F
F
F
F
F
F
EP globale non rinnovabile:
206.11 kW h/m² anno
EP globale rinnovabile:
0.74 kW h/m² anno
EP invernale del fabbricato:
EP estiva del fabbricato:
Anno di costruzione:
1900
Riscaldamento:
Autonomo
Tipo impianto:
A radiatori
Tipo alimentazione:
Metano

Ti interessa visionare l'immobile?

Fissa un appuntamento  Fissa un appuntamento

Richiedi informazioni

Clicca su Leggi per aprire l'informativa
* Questi campi sono obbligatori

Calcola il tuo mutuo

Semplice e senza impegno
Anticipo

( % )
Mutuo

( % )

pochi semplici passi

inserisci i tuoi dati
Questionario completato
Grazie per aver richiesto un appuntamento senza impegno con un nostro Consulente del Credito e Assicurativo.

Hai inserito correttamente tutti i dati necessari e a breve riceverai una e-mail con un link da convalidare per inviare i tuoi dati.
Affiliato
Immobiliare Valenza Srl
Viale Dante Alighieri, 25 15048 Valenza (AL)

Il nostro staff


  • Christian Orsogna
    Affiliato

  • Elisa Mariscotti
    Coordinatrice
Viale Dante Alighieri, 25 15048 Valenza (AL)
Zona: Valenza e Dintorni
Mostra su mappa
Affiliato
Immobiliare Valenza Srl
Viale Dante Alighieri, 25 15048 Valenza (AL)

2026 Tecnocasa Franchising S.p.A. - P. IVA 08365160152 - Via Monte Bianco 60/A 20089 Rozzano (MI). Ogni agenzia ha un proprio titolare ed è autonoma. Privacy policy | Policy utilizzo | Cookie policy