Trilocale in vendita

Valenza, Via Vercelli
€ 92.500
3 locali 3 locali
77 Mq 77 Mq
1 bagno 1 bagno

Trilocale in vendita

Valenza, Via Vercelli

Descrizione annuncio

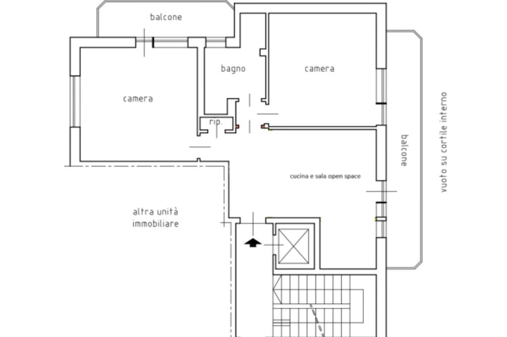
A Valenza, in Via Vercelli, proponiamo in vendita appartamente completamente ristrutturato e con aria condizionata calda/fredda.

L'alloggio, posto al secondo piano di una palazzina in buono stato di manutenzione, è composto da ingresso, tramite porta blindata, su cucina e sala open-space con portafinestra che conduce al balcone.

La zona notte, invece, è composta da due camere da letto matrimoniali e bagno con doccia.

A completare la proprietà una cantina al piano seminterrato.

L'alloggio può essere venduto completo di tutti gli arredamenti.

Mostra tutto

Nelle vicinanze

Trasporto pubblico Trasporto pubblico
Valenza
Valenza
1,8 Km
Trasporto pubblico
570 m
Scuole Scuole
Scuola Media G.Pascoli (ex Anna Frank)
160 m
Scuola Elementare Sette Fratelli Cervi
510 m
Scuola Media G.Pascoli
750 m
Scuole
800 m
Ospedali Ospedali
Ospedale Mauriziano
200 m
Supermercati Supermercati
Supermercati Unes
420 m
Supermercati
770 m
eurospin
1,2 Km
Bar Bar
All-in caffè
510 m
Bar
600 m
Bar DiversoInverso
930 m
Ristoranti Ristoranti
Ristorante Pizzeria Grotta Azzurra
790 m
Mostra tutto

Caratteristiche

Rif.:
61098408
Piano:
2 di 5 con ascensore (Piano basso)
Balconi:
2
Camere da letto:
2
Arredamento:
Completo
Condizionamento:
Autonomo
Mostra tutto
Prezzo Prezzo
€ 92.500
Rata mutuo Rata mutuo
€ 436 / mese
Spese annue Spese annue
€ 1.250
Proponi il tuo prezzoProponi il tuo prezzo

Classe Energetica

D
D
D
D
D
D
D
D
D
EP globale non rinnovabile:
105.58 kW h/m² anno
EP globale rinnovabile:
1.03 kW h/m² anno
EP invernale del fabbricato:
EP estiva del fabbricato:
Anno di costruzione:
1970
Riscaldamento:
Centralizzato
Tipo impianto:
A radiatori
Tipo alimentazione:
Metano

Ti interessa visionare l'immobile?

Fissa un appuntamento  Fissa un appuntamento

Richiedi informazioni

Clicca su Leggi per aprire l'informativa
* Questi campi sono obbligatori

Calcola il tuo mutuo

Semplice e senza impegno
Anticipo

( % )
Mutuo

( % )

pochi semplici passi

inserisci i tuoi dati
Questionario completato
Grazie per aver richiesto un appuntamento senza impegno con un nostro Consulente del Credito e Assicurativo.

Hai inserito correttamente tutti i dati necessari e a breve riceverai una e-mail con un link da convalidare per inviare i tuoi dati.
Affiliato
Immobiliare Valenza Srl
Viale Dante Alighieri, 25 15048 Valenza (AL)

Il nostro staff


  • Christian Orsogna
    Affiliato

  • Elisa Mariscotti
    Coordinatrice
Viale Dante Alighieri, 25 15048 Valenza (AL)
Zona: Valenza e Dintorni
Mostra su mappa
Affiliato
Immobiliare Valenza Srl
Viale Dante Alighieri, 25 15048 Valenza (AL)

2026 Tecnocasa Franchising S.p.A. - P. IVA 08365160152 - Via Monte Bianco 60/A 20089 Rozzano (MI). Ogni agenzia ha un proprio titolare ed è autonoma. Privacy policy | Policy utilizzo | Cookie policy